$725,000
1,399
SQ FT
$518
SQ/FT
2108 Thistle Ct
@ Brandywine Pl - 3400 - Hayward, Hayward
- 3 Bed
- 2.5 Bath
- 2 Park
- 1,399 sqft
- Hayward
-
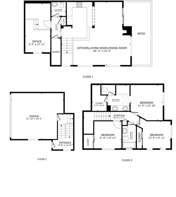
Tucked away on a peaceful cul-de-sac, this 3BD/2.5BA + office split-level home has been beautifully refreshed with new interior paint, new flooring throughout, and new front deck stairs, offering a move-in-ready experience with timeless appeal. The main living area impresses with soaring ceilings and abundant natural light, creating a spacious and inviting atmosphere. The office on the main level provides the perfect work-from-home setup, complemented by a convenient half bath. The kitchen, rich with cabinet space, opens seamlessly to the dining and living rooms, ideal for entertaining and everyday living. Glass sliding doors lead to a large terrace overlooking Ward Creek and lush trees, creating a tranquil connection to nature. Upstairs, all bedrooms are thoughtfully arranged, including a primary suite with a walk-in closet, dual vanities, and a separate toilet closet. Two spacious guest bedrooms enjoy large windows and serene forest-like views, while a guest bath with shower over tub completes the level. A two-car side-by-side garage with laundry, ample storage throughout, and the comfort of a single-family home in a planned unit development. A perfect blend of comfort, style, and hillside serenity awaits.
- Days on Market
- 30 days
- Current Status
- Contingent
- Original Price
- $725,000
- List Price
- $725,000
- On Market Date
- Oct 23, 2025
- Contingent Date
- Nov 6, 2025
- Property Type
- Single Family Residence
- District
- 3400 - Hayward
- Zip Code
- 94542
- MLS ID
- 425083217
- APN
- 425-400-90
- Year Built
- 1997
- Stories in Building
- 3
- Possession
- Close Of Escrow
- Data Source
- SFAR
- Origin MLS System
Liber Academy of Hayward
Private 1-12 Religious, Coed
Students: NA Distance: 0.1mi
Northstar School
Private K-7 Religious, Nonprofit
Students: NA Distance: 0.1mi
Highland
Public K-12
Students: 23 Distance: 0.2mi
East Avenue Elementary School
Public K-6 Elementary, Yr Round
Students: 568 Distance: 0.7mi
Victory Academy
Private 7, 9-11 Secondary, Coed
Students: NA Distance: 0.9mi
Golden Oak Montessori of Hayward School
Charter 1-8
Students: 249 Distance: 1.1mi
- Bed
- 3
- Bath
- 2.5
- Low-Flow Shower(s), Low-Flow Toilet(s), Tub w/Shower Over
- Parking
- 2
- Garage Door Opener, Side-by-Side
- SQ FT
- 1,399
- SQ FT Source
- Unavailable
- Lot SQ FT
- 2,320.0
- Lot Acres
- 0.0533 Acres
- Kitchen
- Kitchen/Family Combo, Tile Counter
- Cooling
- None
- Dining Room
- Sunken
- Living Room
- Cathedral/Vaulted
- Flooring
- Simulated Wood, Tile
- Fire Place
- Living Room, Wood Burning
- Heating
- Central, Natural Gas
- Laundry
- Cabinets, Dryer Included, In Garage, Washer Included
- Upper Level
- Bedroom(s), Full Bath(s)
- Main Level
- Garage, Street Entrance
- Views
- Garden/Greenbelt, Woods
- Possession
- Close Of Escrow
- Special Listing Conditions
- Trust
- * Fee
- $193
- Name
- Hayward Ridgeview HOA
- *Fee includes
- Common Areas, Insurance, Maintenance Grounds, Management, and Road
MLS and other Information regarding properties for sale as shown in Theo have been obtained from various sources such as sellers, public records, agents and other third parties. This information may relate to the condition of the property, permitted or unpermitted uses, zoning, square footage, lot size/acreage or other matters affecting value or desirability. Unless otherwise indicated in writing, neither brokers, agents nor Theo have verified, or will verify, such information. If any such information is important to buyer in determining whether to buy, the price to pay or intended use of the property, buyer is urged to conduct their own investigation with qualified professionals, satisfy themselves with respect to that information, and to rely solely on the results of that investigation.
School data provided by GreatSchools. School service boundaries are intended to be used as reference only. To verify enrollment eligibility for a property, contact the school directly.












































