$335,000
748
SQ FT
$448
SQ/FT
258 State Street
@ Marin St. - Willits
- 2 Bed
- 1 Bath
- 6 Park
- 748 sqft
- Willits
-
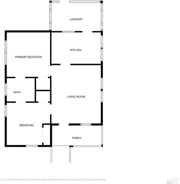
Charming and full of character, this unique mixed Craftsman-style salt box home offers vintage details, generous space, and a prime location just steps from downtown, parks, the world-famous Skunk Train, and the seasonal farmers market. Tucked away on a quiet dead-end street with minimal traffic, this property is ideal for those seeking both convenience and privacy. The interior showcases refinished original fir floors, central heating, recent interior paint, and spacious closets in each bedroom. The layout includes a front living room, a front bedroom, and a Jack-and-Jill bathroom featuring a tiled shower over tub, vinyl flooring, and wall-mounted sink. The well-lit laundry room offers serene backyard views, a laundry tub, and washer/dryerboth included in the sale along with the refrigerator and electric range. Outside, enjoy a spacious yard with room to expand, garden, or entertain. A tandem 4-car detached garage plus additional covered storage in the back total over 900 square feet, offering excellent workshop or hobby space. This property is a rare blend of historical charm and everyday functionality in the heart of town.
- Days on Market
- 136 days
- Current Status
- Contingent
- Original Price
- $335,000
- List Price
- $335,000
- On Market Date
- Jul 10, 2025
- Contingent Date
- Nov 1, 2025
- Property Type
- Single Family Residence
- Area
- Willits
- Zip Code
- 95490
- MLS ID
- 325060083
- APN
- 005-143-03-00
- Year Built
- 1938
- Stories in Building
- Unavailable
- Possession
- Close Of Escrow, Subject To Tenant Rights
- Data Source
- BAREIS
- Origin MLS System
Sanhedrin Alternative
Public 9-12
Students: 55 Distance: 0.2mi
Willits Adult
Public n/a
Students: NA Distance: 0.2mi
Sanhedrin High School
Public 9-12 Continuation
Students: 54 Distance: 0.2mi
Willits Elementary Charter School
Charter K-5
Students: 139 Distance: 0.2mi
Willits High School
Public 9-12 Secondary
Students: 415 Distance: 0.3mi
Trinity Holiness Academy
Private K-12 Combined Elementary And Secondary, Religious, Nonprofit
Students: NA Distance: 0.5mi
- Bed
- 2
- Bath
- 1
- Parking
- 6
- 24'+ Deep Garage, Detached, Garage Facing Front, Tandem Garage, Uncovered Parking Spaces 2+
- SQ FT
- 748
- SQ FT Source
- Assessor Agent-Fill
- Lot SQ FT
- 8,037.0
- Lot Acres
- 0.1845 Acres
- Kitchen
- Laminate Counter
- Cooling
- Ceiling Fan(s)
- Flooring
- Vinyl, Wood, Other
- Foundation
- Concrete Perimeter
- Heating
- Central
- Laundry
- Dryer Included, Inside Room, Washer Included
- Main Level
- Bedroom(s), Full Bath(s), Kitchen, Living Room, Street Entrance
- Views
- Downtown, Hills, Mountains, Other
- Possession
- Close Of Escrow, Subject To Tenant Rights
- Architectural Style
- Craftsman, Other
- Fee
- $0
MLS and other Information regarding properties for sale as shown in Theo have been obtained from various sources such as sellers, public records, agents and other third parties. This information may relate to the condition of the property, permitted or unpermitted uses, zoning, square footage, lot size/acreage or other matters affecting value or desirability. Unless otherwise indicated in writing, neither brokers, agents nor Theo have verified, or will verify, such information. If any such information is important to buyer in determining whether to buy, the price to pay or intended use of the property, buyer is urged to conduct their own investigation with qualified professionals, satisfy themselves with respect to that information, and to rely solely on the results of that investigation.
School data provided by GreatSchools. School service boundaries are intended to be used as reference only. To verify enrollment eligibility for a property, contact the school directly.







































