$349,000
1,082
SQ FT
$323
SQ/FT
3216 Lakeshore Boulevard
@ Hwy 20 - Lake County, Nice
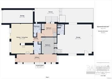
- 2 Bed
- 2 Bath
- 3 Park
- 1,082 sqft
- Nice
-
ATTN: Fisherman! This is the perfect property for getting away to Clear Lake. This 2 bedroom 2 bath home in Nice includes a lake front lot across the street that includes a wonderful patio, rose garden, pier, swim platform, and boat whips to tie up your boat. Home has 2 garages: 1-car garage in front and a 2-car garage in back. Plenty of room to park you boat, trailers, and RV's in the large fenced backyard. New roof just installed, new appliances in kitchen, new HVAC, new carpet, new interior paint. Upstairs room has bathroom, wood burning stove and patio with a view of the lake. What a great place to sit read and book, have your morning coffee and enjoy the view of Clear Lake. Sunroom off the kitchen for added room. Home has leased solar to help with the electric bills. Close to stores, restaurants, parks and boat launch.
- Days on Market
- 16 days
- Current Status
- Active
- Original Price
- $349,000
- List Price
- $349,000
- On Market Date
- Nov 6, 2025
- Property Type
- Single Family Residence
- Area
- Lake County
- Zip Code
- 95464
- MLS ID
- 325096761
- APN
- 032-242-620-000
- Year Built
- 1959
- Stories in Building
- Unavailable
- Possession
- Close Of Escrow
- Data Source
- BAREIS
- Origin MLS System
Westlake Seventh-Day Adventist
Private 1-8 Elementary, Religious, Coed
Students: 13 Distance: 2.8mi
Upper Lake Middle School
Public 6-8 Middle
Students: 190 Distance: 3.9mi
Upper Lake Community Day School
Public 9-12 Opportunity Community
Students: 2 Distance: 4.0mi
Upper Lake High School
Public 9-12 Secondary
Students: 293 Distance: 4.0mi
Upper Lake Adult Education
Public n/a
Students: 20 Distance: 4.0mi
Clover Valley High (Continuation) School
Public 9-12 Continuation
Students: 17 Distance: 4.0mi
- Bed
- 2
- Bath
- 2
- Parking
- 3
- Enclosed
- SQ FT
- 1,082
- SQ FT Source
- Not Verified
- Lot SQ FT
- 8,712.0
- Lot Acres
- 0.2 Acres
- Cooling
- Central, Ductless
- Fire Place
- Wood Burning
- Heating
- Central, Ductless
- Laundry
- Inside Room
- Upper Level
- Bedroom(s)
- Main Level
- Bedroom(s), Family Room, Garage, Kitchen, Living Room
- Views
- Lake
- Possession
- Close Of Escrow
- Fee
- $0
MLS and other Information regarding properties for sale as shown in Theo have been obtained from various sources such as sellers, public records, agents and other third parties. This information may relate to the condition of the property, permitted or unpermitted uses, zoning, square footage, lot size/acreage or other matters affecting value or desirability. Unless otherwise indicated in writing, neither brokers, agents nor Theo have verified, or will verify, such information. If any such information is important to buyer in determining whether to buy, the price to pay or intended use of the property, buyer is urged to conduct their own investigation with qualified professionals, satisfy themselves with respect to that information, and to rely solely on the results of that investigation.
School data provided by GreatSchools. School service boundaries are intended to be used as reference only. To verify enrollment eligibility for a property, contact the school directly.




































































