$1,399,000
1,463
SQ FT
$956
SQ/FT
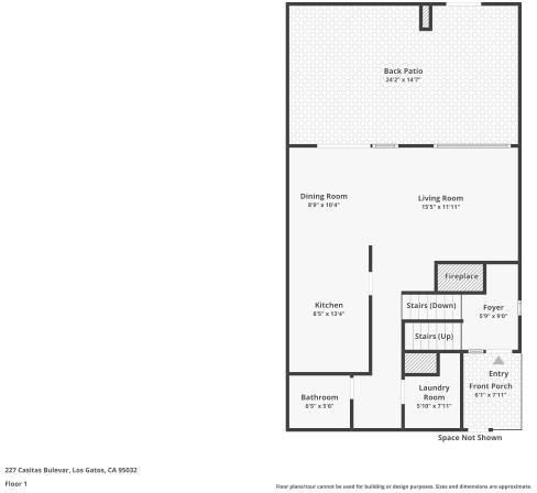
227 Casitas Bulevar
@ Avenida Del Sol - 16 - Los Gatos/Monte Sereno, Los Gatos
- 2 Bed
- 3 (2/1) Bath
- 2 Park
- 1,463 sqft
- LOS GATOS
-
Picture yourself living in Rinconada Hills, nestled within this private, 24 hour gated/monitored Community. Enjoy your best life in a stunning Townhouse offering comfort, style, and resort-like living. Recently upgraded with new copper piping, new laminate flooring, and fresh paint, this fabulous residence is move-in ready and designed for modern, luxurious living. The spacious floor plan features soaring ceilings, an inviting fireplace, a refreshed kitchen, and beautifully renovated primary bath. Enjoy seamless indoor-outdoor living with a patio, deck or balcony on each level; perfect for relaxing or entertaining. The West-facing patio opens to lush community gardens and sparkling swimming pool, creating a serene, private backdrop. Ideally located close to schools, parks, and shopping, minutes from downtown Los Gatos, Saratoga and Campbell. This home combines tranquility, luxury, privacy and convenience. Community amenities include a manned 24 hour security team and gated entry, a large, beautiful, Clubhouse with commercial kitchen, a bocce ball court, tennis courts and pickle ball court, scenic paved hiking trails,10 swimming pools, a lake and spectacular waterfalls and organized social events, offering a vibrant lifestyle in this popular, much sought-after community.
- Days on Market
- 47 days
- Current Status
- Contingent
- Sold Price
- Original Price
- $1,499,000
- List Price
- $1,399,000
- On Market Date
- Feb 19, 2026
- Contract Date
- Apr 7, 2026
- Close Date
- May 7, 2026
- Property Type
- Townhouse
- Area
- 16 - Los Gatos/Monte Sereno
- Zip Code
- 95032
- MLS ID
- ML82032171
- APN
- 407-29-016
- Year Built
- 1969
- Stories in Building
- 2
- Possession
- COE
- COE
- May 7, 2026
- Data Source
- MLSL
- Origin MLS System
- MLSListings, Inc.
Rolling Hills Middle School
Charter 5-8 Middle
Students: 1062 Distance: 0.2mi
Westmont High School
Public 9-12 Secondary
Students: 1601 Distance: 0.6mi
Marshall Lane Elementary School
Charter K-5 Elementary
Students: 541 Distance: 0.6mi
Forest Hill Elementary School
Charter K-5 Elementary
Students: 657 Distance: 1.0mi
Village
Charter K-5 Elementary
Students: 263 Distance: 1.2mi
Capri Elementary School
Charter K-5 Elementary
Students: 589 Distance: 1.2mi
- Bed
- 2
- Bath
- 3 (2/1)
- Parking
- 2
- Attached Garage, Common Parking Area, Guest / Visitor Parking, Off-Street Parking, On Street, Parking Area
- SQ FT
- 1,463
- SQ FT Source
- Unavailable
- Pool Info
- Community Facility, Pool - Heated, Pool - In Ground, Spa - Gas, Spa - In Ground
- Kitchen
- Cooktop - Electric, Countertop - Tile, Dishwasher, Exhaust Fan, Garbage Disposal, Microwave, Oven - Electric, Refrigerator
- Cooling
- Central AC
- Dining Room
- Breakfast Bar, Dining Area, Skylight
- Disclosures
- NHDS Report
- Family Room
- No Family Room
- Flooring
- Laminate, Tile
- Foundation
- Concrete Slab
- Fire Place
- Gas Starter, Living Room, Wood Burning
- Heating
- Central Forced Air - Gas
- Laundry
- In Utility Room, Washer / Dryer
- Possession
- COE
- * Fee
- $2,906
- Name
- Rinconada Hills
- Phone
- 408-374-3895
- *Fee includes
- Common Area Electricity, Common Area Gas, Exterior Painting, Fencing, and Insurance - Common Area
MLS and other Information regarding properties for sale as shown in Theo have been obtained from various sources such as sellers, public records, agents and other third parties. This information may relate to the condition of the property, permitted or unpermitted uses, zoning, square footage, lot size/acreage or other matters affecting value or desirability. Unless otherwise indicated in writing, neither brokers, agents nor Theo have verified, or will verify, such information. If any such information is important to buyer in determining whether to buy, the price to pay or intended use of the property, buyer is urged to conduct their own investigation with qualified professionals, satisfy themselves with respect to that information, and to rely solely on the results of that investigation.
School data provided by GreatSchools. School service boundaries are intended to be used as reference only. To verify enrollment eligibility for a property, contact the school directly.




































