$382,900
982
SQ FT
$390
SQ/FT
2192 Woods Drive
@ Hammonton Smartsville - Linda
- 2 Bed
- 2 Bath
- 0 Park
- 982 sqft
- Linda
-
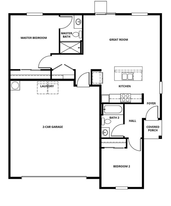
The Amador at Dantoni Ranch is a beautifully designed two-bedroom, two-bathroom home with an open layout that blends the kitchen, dining, and living areas. A modern kitchen with granite countertops, ample cabinetry, and energy-efficient appliances makes meal prep a breeze. With included upgrades like luxury vinyl-plank flooring, a programmable thermostat, and a Wi-Fi-enabled garage door opener, this home offers both style and convenience from day one.
- Days on Market
- 3 days
- Current Status
- Active
- Original Price
- $382,900
- List Price
- $382,900
- On Market Date
- Nov 14, 2025
- Property Type
- Single Family Residence
- Area
- Linda
- Zip Code
- 95901
- MLS ID
- 225144469
- APN
- 018-355-008
- Year Built
- 2025
- Stories in Building
- Unavailable
- Possession
- Close Of Escrow
- Data Source
- BAREIS
- Origin MLS System
Linda Elementary School
Public K-6 Elementary
Students: 659 Distance: 0.6mi
Knights School
Private K-12
Students: NA Distance: 0.7mi
Bible Baptist Schools
Private K-6 Combined Elementary And Secondary, Religious, Coed
Students: 35 Distance: 1.4mi
Edgewater Elementary School
Public K-6
Students: 482 Distance: 1.7mi
Anna McKenney Intermediate School
Public 6-8 Middle
Students: 617 Distance: 2.3mi
Kynoch Elementary School
Public K-5 Elementary
Students: 719 Distance: 2.5mi
- Bed
- 2
- Bath
- 2
- Low-Flow Toilet(s), Walk-In Closet
- Parking
- 0
- Private, Attached, Garage Door Opener, Garage Facing Front, Interior Access
- SQ FT
- 982
- SQ FT Source
- Builder
- Lot SQ FT
- 6,000.0
- Lot Acres
- 0.1377 Acres
- Kitchen
- Breakfast Area, Pantry Cabinet, Granite Counter
- Cooling
- Ceiling Fan(s), Central
- Dining Room
- Dining/Living Combo
- Living Room
- Great Room
- Flooring
- Carpet, Vinyl
- Foundation
- Concrete, Slab
- Heating
- Central, Electric
- Laundry
- Electric, Hookups Only, Inside Area
- Main Level
- Bedroom(s), Dining Room, Primary Bedroom, Full Bath(s), Garage, Kitchen
- Possession
- Close Of Escrow
- Fee
- $0
MLS and other Information regarding properties for sale as shown in Theo have been obtained from various sources such as sellers, public records, agents and other third parties. This information may relate to the condition of the property, permitted or unpermitted uses, zoning, square footage, lot size/acreage or other matters affecting value or desirability. Unless otherwise indicated in writing, neither brokers, agents nor Theo have verified, or will verify, such information. If any such information is important to buyer in determining whether to buy, the price to pay or intended use of the property, buyer is urged to conduct their own investigation with qualified professionals, satisfy themselves with respect to that information, and to rely solely on the results of that investigation.
School data provided by GreatSchools. School service boundaries are intended to be used as reference only. To verify enrollment eligibility for a property, contact the school directly.





