$690,000
3,085
SQ FT
$224
SQ/FT
2326 Ray Venning Ct
@ Conley Ln - C0901 - Fairfield 1, Fairfield
- 4 Bed
- 3.5 Bath
- 5 Park
- 3,085 sqft
- Fairfield
-
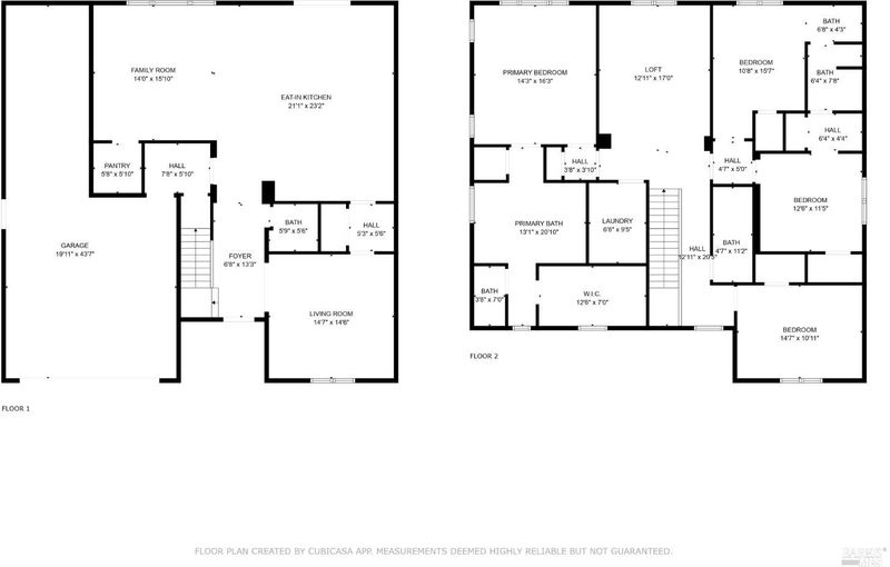
Welcome to this 4-bedroom, 3.5-bath home nestled in a quiet, private court in the sought-after Gold Ridge community of Fairfield. Offering 3,085 sq ft of thoughtfully designed living space on an expansive 8,600+ sq ft lot, this home provides both comfort and functionality for modern living. Step inside to a bright and welcoming living room, the open layout flows seamlessly into a spacious family room/kitchen combo, creating the heart of the home where gatherings come naturally. The kitchen boasts an island, ample cabinetry, and a clear view of the large backyard ideal for outdoor dining, play, or simply enjoying your private retreat. Downstairs, you will find a convenient half bath and a 3-car garage. Upstairs features a versatile loft, perfect for a home office, playroom, or second living area. The large primary bedroom offers an ensuite bath and walk-in closet. Three additional well-sized bedrooms and two full bathrooms provide plenty of room for family, guests, or a growing household. Situated near neighborhood parks, scenic walking trails, shopping, and commuting routes. Don't miss the opportunity to make this exceptional property your own.
- Days on Market
- 72 days
- Current Status
- Contingent
- Original Price
- $780,000
- List Price
- $690,000
- On Market Date
- Sep 10, 2025
- Contingent Date
- Nov 11, 2025
- Property Type
- Single Family Residence
- District
- C0901 - Fairfield 1
- Zip Code
- 94533
- MLS ID
- 325081284
- APN
- 0166-334-060
- Year Built
- 2015
- Stories in Building
- 2
- Possession
- Close Of Escrow
- Data Source
- SFAR
- Origin MLS System
Vanden High School
Public 9-12 Secondary
Students: 1730 Distance: 1.3mi
Travis Community Day School
Public 7-12 Opportunity Community
Students: 16 Distance: 1.6mi
Travis Education Center
Public 9-12 Continuation
Students: 66 Distance: 1.6mi
Travis Independent Study School
Public K-12 Alternative
Students: 3 Distance: 1.6mi
Golden West Middle School
Public 7-8 Middle
Students: 846 Distance: 1.6mi
Center Elementary
Public K-6 Elementary
Students: 508 Distance: 1.8mi
- Bed
- 4
- Bath
- 3.5
- Parking
- 5
- Attached, Garage Door Opener, Interior Access, Side-by-Side, Tandem Garage
- SQ FT
- 3,085
- SQ FT Source
- Unavailable
- Lot SQ FT
- 8,621.0
- Lot Acres
- 0.1979 Acres
- Cooling
- Central
- Dining Room
- Dining/Family Combo, Space in Kitchen
- Flooring
- Tile, Wood
- Foundation
- Slab
- Heating
- Central
- Laundry
- Hookups Only, Inside Room
- Upper Level
- Bedroom(s), Full Bath(s), Primary Bedroom
- Main Level
- Dining Room, Family Room, Garage, Kitchen, Living Room, Street Entrance
- Possession
- Close Of Escrow
- Architectural Style
- Contemporary
- Special Listing Conditions
- Offer As Is
- Fee
- $0
MLS and other Information regarding properties for sale as shown in Theo have been obtained from various sources such as sellers, public records, agents and other third parties. This information may relate to the condition of the property, permitted or unpermitted uses, zoning, square footage, lot size/acreage or other matters affecting value or desirability. Unless otherwise indicated in writing, neither brokers, agents nor Theo have verified, or will verify, such information. If any such information is important to buyer in determining whether to buy, the price to pay or intended use of the property, buyer is urged to conduct their own investigation with qualified professionals, satisfy themselves with respect to that information, and to rely solely on the results of that investigation.
School data provided by GreatSchools. School service boundaries are intended to be used as reference only. To verify enrollment eligibility for a property, contact the school directly.


























































